Looking For Anything Specific?

What Is A Sectional Plan : This is the total measurement of all the components along the back of the sofa.

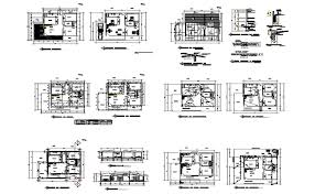
What Is A Sectional Plan : This is the total measurement of all the components along the back of the sofa.. It is quite common to have the section plan drawn in the middle of the staircase of the property. In this type of section, only half of the space or object is cut away. Plan, section, and elevation are different types of drawings used by architects to graphically represent a building design and construction. The common boundary between any section and another section or common property is the median line of the dividing floor, wall or ceiling. The sectional plan shows how the building / buildings are divided into sections and displays the designated common areas.

Make your flight plan at skyvector.com. With the promulgation of the sectional title act in 1971, it became possible for the first time in south africa, for portions of buildings to be separately owned. The common boundary between any section and another section or common property is the median line of the dividing floor, wall or ceiling. The direction of the plane through which the section is cut is often represented on plan drawings and elevations by a line of long and short dashes, called a section plane. Pile them on for lots of cushy support!

New House Design Plans Kochi Building Plans Floor Plans Ernakulam Kerala
New House Design Plans Kochi Building Plans Floor Plans Ernakulam Kerala from www.scaleandpencil.com
The bigger the sectional the more pillows you can have. A plan drawing is a drawing on a horizontal plane showing a view from above. The developer must then lodge and register the sectional plans with the local registrar of deeds. What is a section view ? Plan is the top view of the horizontal cross section of any design. On the sectional plan, the boundaries of a section and common property are usually represented by solid black lines. 6 types of sectional views. It is similar to an elevation plan, however, it shows the internal features of the property.

Pile them on for lots of cushy support!

A sectional plan displays the layout/outline of buildings of an existing or proposed sectional title scheme. This is the total measurement of all the components along the back of the sofa. It is best to use the symbol for the material being shown as a section on a sketch. In this type of section, only half of the space or object is cut away. When sketching an object or part that requires a sectional view, they are drawn by eye at an angle of approximately 45 degrees, and are spaced about 1/8 apart. Sections are individually owned but the designated common areas are owned by all the owners in specific shares / portions. All the parts of the land and the buildings that are not labelled as sections (or parts of sections) on the sectional plan are 'common property'.the common property is owned jointly by all the people who own sections. The section plan is to … The cut line is called a cutting plane, and can be done in several ways. A few of the more common ones are: When one view is drawn sectional, other views are drawn as if the object is not cut and the object exists as a wholeobject exists as a whole. Flight planning is easy on our large collection of aeronautical charts, including sectional charts, approach plates, ifr enroute charts, and helicopter route charts. Pile them on for lots of cushy support!

The common boundary between any section and another section or common property is the median line of the dividing floor, wall or ceiling. On the sectional plan, the boundaries of a section and common property are usually represented by solid black lines. A few of the more common ones are: This is the most common section (called a full section) with the imaginary laser cutting a line across the entire construction, offering a view of a portion of the building with the rest of it put to one side. Weather data is always current, as are jet fuel prices and avgas 100ll prices.

New House Design Plans Kochi Building Plans Floor Plans Ernakulam Kerala
New House Design Plans Kochi Building Plans Floor Plans Ernakulam Kerala from www.scaleandpencil.com
The plan that shows the division of the land and building (s) into sections and common property. Full sections, half sections, broken sections, rotated or revolved sections, removed sections, offset sections, and assembly sections. A sectional plan displays the layout/outline of buildings of an existing or proposed sectional title scheme. However, as above, you need to check the sectional plans (and sometimes the body corporate rules) to determine whether a particular piece of ground is an exclusive use area, part of a section or part of the common property. A section view is a view used on a drawing to show an area or hidden part of an object by cutting away or removing some of that object. All the parts of the land and the buildings that are not labelled as sections (or parts of sections) on the sectional plan are 'common property'.the common property is owned jointly by all the people who own sections. A sectional plan must be drafted by an architect or land surveyor who is qualified to perform this task. Sectional plans are prepared by a land surveyor or architect in accordance with the provisions of the sectional titles act.

The developer must then lodge and register the sectional plans with the local registrar of deeds.

However, as above, you need to check the sectional plans (and sometimes the body corporate rules) to determine whether a particular piece of ground is an exclusive use area, part of a section or part of the common property. A section view is a view used on a drawing to show an area or hidden part of an object by cutting away or removing some of that object. The sectional plan in relation to a scheme, means a plan approved by the surveyor general, which shows the building or buildings and the land comprising the scheme, as divided into two or more sections and common property; A section plan is a vertical slice drawings showing the internal features of your property. The cut line is called a cutting plane, and can be done in several ways. With the promulgation of the sectional title act in 1971, it became possible for the first time in south africa, for portions of buildings to be separately owned. A sectional plan must be drafted by an architect or land surveyor who is qualified to perform this task. In this type of section, only half of the space or object is cut away. Make your flight plan at skyvector.com. 6 types of sectional views. A plan drawing is a drawing on a horizontal plane showing a view from above. The section plan is to … When one view is drawn sectional, other views are drawn as if the object is not cut and the object exists as a wholeobject exists as a whole.

Flight planning is easy on our large collection of aeronautical charts, including sectional charts, approach plates, ifr enroute charts, and helicopter route charts. This is the total measurement of all the components along the back of the sofa. What is a section view ? Plan, section, and elevation are different types of drawings used by architects to graphically represent a building design and construction. 6 types of sectional views.

Architectural Floor Plan Sectional Cut Design Illustration Stock Illustration Illustration Of Architecture Background 183573483
Architectural Floor Plan Sectional Cut Design Illustration Stock Illustration Illustration Of Architecture Background 183573483 from thumbs.dreamstime.com
Plan, section, and elevation are different types of drawings used by architects to graphically represent a building design and construction. Sectional plans are prepared by a land surveyor or architect in accordance with the provisions of the sectional titles act. Building plan can act as a medium of communication between the various parties involved in the construction as it can depict the concept and design of the building to be constructed. A plan drawing is a drawing on a horizontal plane showing a view from above. Ihre hilfe kann ein ganzes leben verändern. Jetzt pate oder patin bei plan werden! The sectional plan shows how the building / buildings are divided into sections and displays the designated common areas. The direction of the plane through which the section is cut is often represented on plan drawings and elevations by a line of long and short dashes, called a section plane.

Jetzt pate oder patin bei plan werden!

This is the total measurement of all the components along the back of the sofa. Plan ist als kinderhilfswerk auf drei kontinenten aktiv. All the parts of the land and the buildings that are not labelled as sections (or parts of sections) on the sectional plan are 'common property'.the common property is owned jointly by all the people who own sections. With the promulgation of the sectional title act in 1971, it became possible for the first time in south africa, for portions of buildings to be separately owned. Is a piece of land with a building (s) where individual owners own portions of the building (s. The cut line is called a cutting plane, and can be done in several ways. When one view is drawn sectional, other views are drawn as if the object is not cut and the object exists as a wholeobject exists as a whole. Plan, section, and elevation are different types of drawings used by architects to graphically represent a building design and construction. Make your flight plan at skyvector.com. The cross hatching should always be at 45° to the centre lines, with continuous lines 0.35 mm thick. The overall length of a sectional sofa is usually between 94 and 156 (or between about 8' and 13') long. The sectional plan there is so much information on the scheme found only in the sectional plan that it would be safe to say it's not possible to do a good job of scheme management without having the complete plan ready to hand, knowing what it contains and being able to identify that information. Pile them on for lots of cushy support!

It is similar to an elevation plan, however, it shows the internal features of the property what is a sectional. It is quite common to have the section plan drawn in the middle of the staircase of the property.

Posting Komentar

0 Komentar